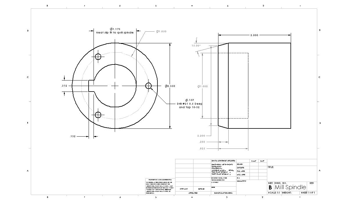
Spindle